Добро пожаловать на http://vipplan.ru

Випплан Орск - это тысячи проектов домов в нашем каталоге!

Вы всегда сможете найти для себя проект дома вашей мечты! Даже если этого не случилось, мы готовы в любую минуту предложить проект индивидуального дома.

Забыли пароль?
Вы еще не регистрировались?

Перейдите по ссылке ниже на страницу регистрации.

Регистрация...

Внимание!!!

В проектную документацию могут быть внесены изменения любой сложности, в соответствии в Вашими пожеланиями!

Полезные статьи

Уклон кровли дома

Чтобы вода быстрее уходила с кровли Вашего дома, скатам необходимо придать уклон, который выражающийся в процентах или градусах и измеряющийся геодезическими инструментами. Уклон кровли обозначает угол наклона ската к горизонту. Чем больше уклон, тем круче крыша. У новомодных зданий наклон кровли делают не очень большим....

Виды бассейнов

В наше время, строительство бассейна на территории своего участка, не такая уж и роскошь. Выбор видов и стилей бассейна, на сегодняшний день, очень большой....

Проекты домов и коттеджей > Каталог проектов домов > Проект дома с мансардой Vg1060

Проект дома с мансардой Vg1060

Проект дома с мансардой
Зарегистрируйтесь

Проект № Vg1060


Техническое описание
Общая площадь: 155 м2
Жилая площадь: 102.24 м2
Высота здания: 9.61 м
Размеры дома: 9.56м×9.56м
Кол-во комнат: 6
Цокольный этаж: нет
Гараж: нет
Мансарда: есть

Kонструкция
Фундамент: Монолитная плита
Перекрытия: Деревянные балки
Материал стен: Газобетон

Архитектурный раздел
Конструктивный раздел
АР+КР - 56 000 (Со скидкой 20%)
Проект индивидуального одноэтажного жилого дома с мансардой с размерами здания 9,56 x 13,96 м. Наружная отделка здания – фасадная штукатурка. Фундамент – монолитная плита ( под всей площадью дома). Наружные стены – из газобетонных блоков, с теплой фасадной штукатуркой. Внутренние стены - из газобетонного блока. Перегородки – 1 этаж из газобетонного блока, мансарда — ГКЛ на металлическом каркасе. Пол первого этажа - пол по монолитной плите. Межэтажное перекрытие- деревянные балки. Крыша многоскатная. Кровля –битумная черепица. Окна — металлопластиковые
Генплан застройки участка / Паспорт проекта 7000 руб / 10000 руб
Инженерный раздел (полный) 77500 руб
Смета на строительство 38750 руб
Теплотехнический расчет материалов стен Бесплатно
Стоимость проекта со незначительнми изменениями 66100 руб
Стоимость проекта со средними изменениями* 77800 руб
Стоимость проекта со значительными изменениями** 80900 руб

План первого этажа


Тамбур - 4,77 м2
Холл - 8,47 м2
Гостиная - 22,44 м2
Кухня - 11,36 м2
Спальня - 11,61 м2
С/у - 3,84 м2
Бойлерная - 4,80 м2
Гараж - 19,20 м2

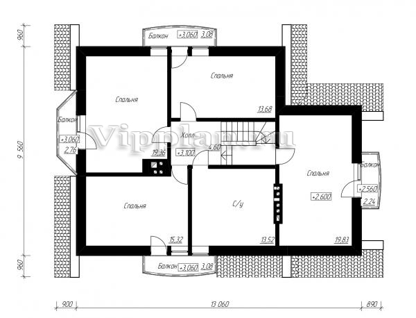
План мансардного этажа


Холл - 4,60 м2
Спальня - 13,68 м2
Спальня - 19,36 м2
Спальня - 15,32 м2
С/у - 13,52 м2
Спальня - 19,83 м2
Проект дома с мансардой Проект дома с мансардой Проект дома с мансардой Проект дома с мансардой

Модификации проектов

Внесение изменений и привязка к участку строительства

В любой из проектов от компании VIPplan - Орск по вашему желанию могут быть внесены изменения в материалы стен, материалы наружной отделки дома, а также будет произведена адаптация проекта под конкретный регион строительства (с учетом грунтов региона, геологических особенностей вашего участка и местных климатических условий) - БЕСПЛАТНО !!! (кроме проектов со скидкой и проектов наших партнеров).

Любой из проектов, размещенных на сайте orsk.vipplan.ru мы можем выполнить из требуемых вам строительных материалов: ячеистый бетон (газобетон, пеноблок), керамоблок, кирпич, шлакоблок, бетонный блок, дерево (брус, клееный брус), каркасная технология (деревянный каркас, металлокаркас (ЛСТК)).

Фасад дома и его наружную отделку так же возможно выполнить с применением различных облицовочных материалов: структурной штукатурки, (с утеплителем и без), сайдингом (пластиковый или металлосайдинг), фиброплитами, кирпича.

 
6 Избранные
проекты

Доставка проектов по России: Москва (Московская область), Санкт-Петербург (Ленинградская область), Краснодар, Ростов-на-Дону, Ставрополь, Сочи, Волгоград, Новосибирск, Белгород, Брянск, Воронеж, Саратов, Хабаровск, Астрахань, Нальчик, Владикавказ, Екатеринбург, Тюмень, Самара, Нижний Новгород, Казань, Пермь, Уфа, Челябинск, Красноярск, Ханты-Мансийск, Иркутск, Курган, Оренбург, Омск, Томск, Барнаул, Новокузнецк, Кемерово, Абакан, Чита, Якутск, Южно-Сахалинск, Петропавловск-Камчатский и страны ближнего зарубежья: Белоруссия, Украина, Казахстан